Key Features
Bosch kitchen with double oven and dishwasher
Viridian solar panels on every home
EV charging point on every home
Secure by Design anthracite uPVC windows
Gas central heating with A‑rated Ideal boiler
Ultrastream300 fibre broadband up to 300Mbps (GTC)
Landscaped front gardens; rear patio and external lighting
4 bedroom detached house
Floor Plans
Ground Floor

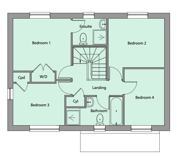
First Floor

Room Dimensions
| Room | Dimensions |
|---|---|
| Lounge | 6.53m x 3.52m |
| Kitchen/Dining | 7.77m x 3.41m |
| Bedroom 1 | 3.53m x 3.20m |
| Bedroom 2 | 3.53m x 2.56m |
| Bedroom 3 | 3.42m x 2.30m |
| Bedroom 4 | 2.45m x 2.59m |
All dimensions are approximate and may vary slightly in individual properties.
Specifications
- Stunning kitchens in a choice of colours from Howdens with upstands and splash back
- Choice of unit and worktop colour for early reservations
- Stylish aqua board in wet areas — choice of finish for early reservations
- 4 bedroom houses — Bosch appliances, double oven, electric hob, extractor fan, 50/50 fridge/freezer, and dishwasher
- Sanitaryware by Imex
- Secure by design Anthracite UPVC windows
- Gas central heating, A Rated Ideal Boilers
- Anthracite fascias with deep flow black down pipes
- Individually landscaped front gardens — seeded at rear
- Ample parking with garage; block paving parking bays
- Coving and flat ceilings throughout the property
- Stylish contemporary internal doors
- Chamfered skirting and architrave throughout
- Stylish Hager power points
- Spotlights in the kitchen
- External lighting front and rear
- Patio area to rear of property
- External tap
- Light & power in loft space and garages
- Ultrastream300 from GTC available with up to 300Mbps fibre broadband speed
- Every property will benefit from Viridian Solar Panels
- EV charging points on every home
- 10 year NHBC building cover
- Plot Size: Premium plots
- Garden Type: Large landscaped garden
- Parking: Double garage
- Heating: Gas central heating
- Construction: Superior specification
Interested in The Imperial (Phase 6)?
Contact our team for more information, to arrange a viewing, or to discuss your requirements.
Enquire Now
Or call Bycroft directly:
01493 664000